En Venta
CASA DE 2 AMBIENTES, CON DOS LOCALES. IDEAL EMPRENDEDORES.
Código: 211947

José Ignacio Rucci 11, B1824HAF Valentín Alsina, Provincia de Buenos Aires, Argentina, Lanus, Buenos Aires, Argentina.

USD69.000

Casa con Local
Compartir esta Propiedad

Descripción de la Propiedad

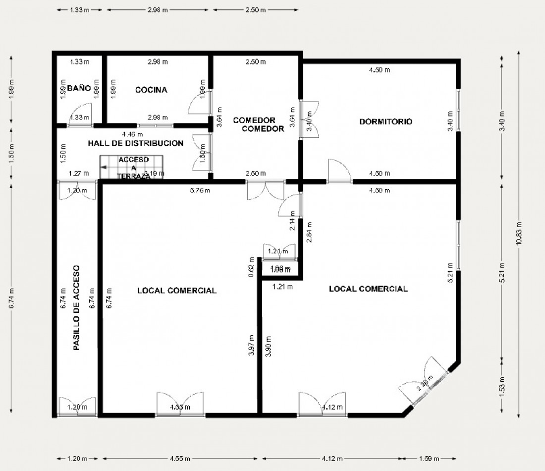
Casa de 2 ambientes con dos locales sobre esquina, 120m2 totales.
Cuenta con dos locales de aproximadamente 35m2 cada uno, comunicados por medio de una puerta, ambos locales poseen acceso desde la vía pública.
La vivienda posee un dormitorio, cocina, comedor, baño, lavadero y terraza con galpón.
Ubicado sobre la calle José Ignacio Rucci esquina Chile a pocas cuadras de las avenidas Juan D. Perón y Bernardino Rivadavia.
Cercanía a numerosas líneas de colectivo, y a pocos minutos de CABA.
El inmueble cuenta con los servicios de energía eléctrica, agua corriente, gas natural.

Superficie aproximada total: 120m2.
Superficie aproximada locales: 70m2.
Superficie aproximada vivienda: 50m2.

(Las superficies consignadas anteriormente son referenciales y pueden variar según plano o título.)

Mas detalles
  • Antigüedad 60 años